
2000目納米碳酸鈣 碳酸鈣自動化生產線HLMX超細立磨可生產2000目納米碳酸鈣,400-2500目重質碳酸鈣。可配置年產5~50萬噸碳酸鈣生產項目等多種生...

無水炮泥 無水炮泥,指的是使用焦油和樹脂等材料作為黏接劑,并且使用碳化硅、鋁礬土、黏土、焦粉等作為原材料,通過與焦油和...

無水石膏水泥生產設備 HLM水泥磨混合粉磨系統 無水石膏水泥生產設備主要設備是磨粉工段的水泥磨混合粉磨系統。水泥磨混合粉磨系統將石灰、頁巖灰、粒化高爐礦渣、硫...

庫倫旗2020年內蒙古自治區重點經濟合作項目 (第一批)資料顯示,庫倫旗2020年重大項目一期擬建設5條高鈣石破碎加工生產線,每條生產線年產40萬噸高鈣石。還有...

無水石膏 無水石膏粉超細磨粉設備有兩款設備,有超細石膏粉磨機2000目HLMX超細立磨和HCH超細環輥磨粉機。HLMX超細立磨可以將無水石膏加工到細度在45u...

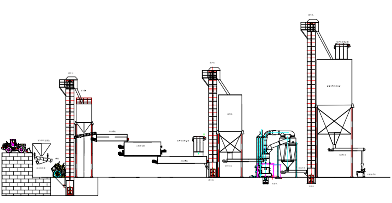
振動給料--》錘式破碎機破碎(脈沖除塵器)--》提升機--》原料罐--》給料皮帶--》預消化系統--》消化系統--》均化系統--》提升機--》圓筒篩(排渣)--...

200目磨生石灰用什么磨機?是要依據產量和生石灰粉的目數配置生產線,當然還要視您的投產力度,投資額度幾十萬以內采用雷蒙磨較多,要有上百萬就建議采用立磨,產量...

廢舊耐火材料循環利用是一項目工程,廢舊耐火材料循環利用的設備有分揀機,除渣機,破碎機,耐火材料磨機(礦渣立磨或球磨),篩分選粉設備以及其他輔助設備等。近幾年環保...